345 000 € honoraires inclus
Honoraires à la charge du vendeur, les informations sur les risques auxquels ce bien est exposé sont disponibles sur georisques.gouv.fr, notre barème de prix est consultable dans la page 'mentions légales' de notre site internet.
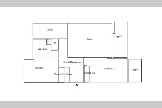
Caractéristiques :
21 m² de séjour
niveau
Exposition
Vue
Cuisine séparée
Standing
Année de construction 1970
Prestations :
cuisine : séparée - nombre de stationnements : 1 - type de stationnements : extérieur - quartier : commerces, plage - type de prestation : v
Caractéristiques :
21 m² de séjour
niveau
Exposition
Vue
Cuisine séparée
Standing
Année de construction 1970
Prestations :
cuisine : séparée - nombre de stationnements : 1 - type de stationnements : extérieur - quartier : commerces, plage - type de prestation : v
